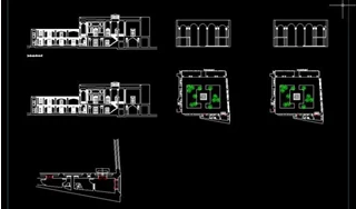
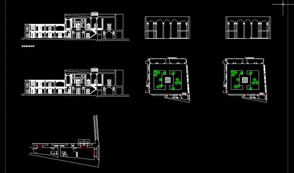
خانه مشروطه تبریز، مشهور به خانه کوزهکَنانی، یکی از درخشانترین نمونههای معماری قاجاری در شمالغرب ایران است. این خانه در ساختار خود، ترکیبی از تزئینات اصیل ایرانی و هنر آذری را در قالبی هماهنگ و موزون به نمایش میگذارد. ورودی با قوسهای جناغی و آجرکاری خیرهکننده، احساس ورود به عصری تاریخی را القا میکند. فضاهای داخلی با چیدمان قرینه، نورگیری مطلوب و تزیینات گچبری و شیشههای رنگی، طراحی شدهاند تا هم کارکرد مسکونی و هم اجتماعی داشته باشند. استفاده از حیاط مرکزی، طاقهای بلند و پنجرههای مشبک، ساختاری با هویت ایرانی ایجاد کرده است. این خانه در عین زیبایی، عملکرد سیاسی نیز داشته و مرکز گردهمایی آزادیخواهان دوره مشروطه بوده است. هندسهی پلانها دقت در طراحی را نشان میدهد و کاربری فضاها بهخوبی در خدمت اهداف تاریخی و فرهنگی بنا قرار گرفتهاند.